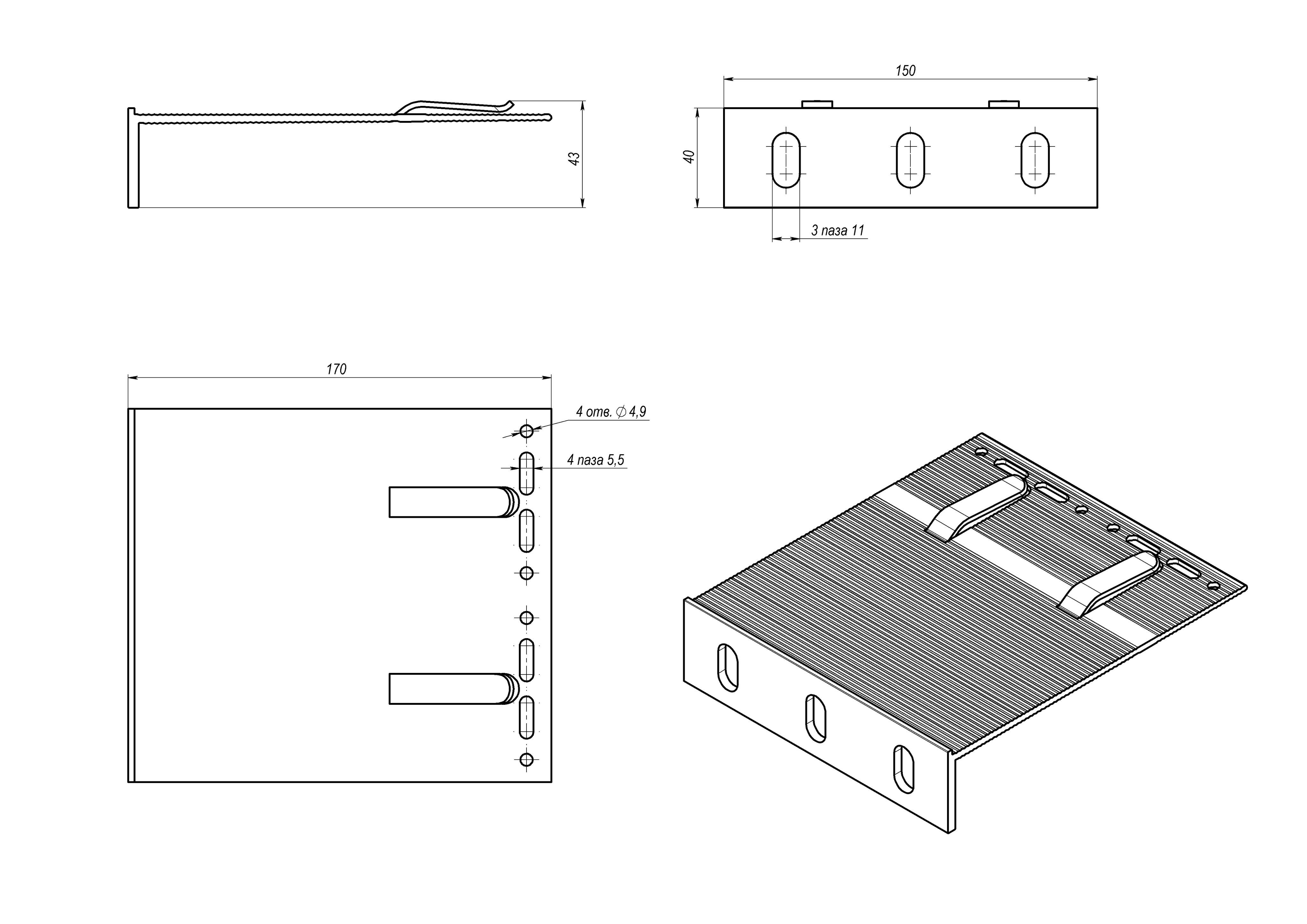
RLS-BR-XL-170150 Кронштейн усиленный RLS XL 170x150 (арт. RLS-BR-XL-170150) – Подсистема вентилируемого фасада REVENTAL
Материал: Коррозионностойкий алюминиевый сплав AlMgSi 6060 T6 по ГОСТ 4784-2019. Заключение о коррозионной стойкости на 50 лет №05221-501 от 17.05.2021 (лаб. Expertcorr, MISiS).
Сейсмостойкость: Подтверждена экспериментами МГСУ (НИИЖБ им. МНГСУ, отчет К-812-21). Выдерживает нагрузки 80-120 кг/м², сейсмику 7-9 баллов по шкале MSK-64 (СП 14.13330.2018).
Сертификация: Декларация соответствия KZ.71841.13.12.387451 до 21.04.2028 (ТР ТС 014/2011, ГОСТ 22233-2018). Производитель: REVENTAL (официальный представитеть в РК - ТОО "VENTFASAD 24").
Идеален для климата Казахстана: -50°C до +50°C, ветра 40 м/с. Регулируемый зазор 120-600 мм. Совместим любыми видами утеплителя, любыми видами облицовок.
Преимущества:
- Гарантия 50 лет на коррозию (ISO 9227, ГОСТ 9.308-85).
- Теплоизоляция до 200 мм, энергоэффективность по 'Зеленому строительству' РК.
- Монтаж на бетон/кирпич/газобетон, шаг 600-1200 мм.
- Доставка по Алматы, Астана, Караганда 3-7 дней.
Применение: жилые комплексы, торговые центы, аэропорты, образовательные учреждения и т.п.. Цена в KZT, опт/розница.
Реквизиты документов: Отчет МГСУ №К-812-21 (2022), Заключение MISiS №05221-501, Декларация KZ.71841.
